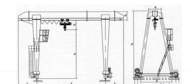
MHZ型电动葫芦抓斗门式蜜桃视频APP下载机与CD型电葫芦及抓斗蜜桃视频APP下载机配套设施应用,是一种有轨运作的中小型吊车,适用吊重5-10吨,适用跨距12-30米,办公环境-20℃-40℃中间。本商品为一般主要用途蜜桃视频APP下载设备,多用以户外场地及库房的装卸搬运或爬取原材料,本商品有路面控制和房间内控制二种形式。



相关推荐
联系人:徐经理
手机:13782575673
电话:0373-8611375
邮箱:hnzyaqqz@126.com
官网:www.766cs.com
地址:河南长垣蜜桃视频APP下载工业园区华豫大道中段