您好,欢迎进入河南省中原蜜桃APP污实业有限公司官方网站!

与时俱进,诚赢客户

蜜桃视频在线观看视频、提梁机、门式蜜桃视频APP下载机生产厂家

服务电话:13782575673

蜜桃视频APP下载机产品问答

您现在所在位置:首页>>蜜桃视频APP下载资讯>>蜜桃视频APP下载机产品问答

概述欧式蜜桃视频APP下载机小车

本文链接:http://www.766cs.com/cjwt/510.html   发布时间:2021-03-01 01:43:17  点击量:1413

  欧式小车是欧式蜜桃视频APP下载机的核心部分,包括小欧式小车(图3-1)和中欧式小车(图3-2)及大欧式小车(图3-3),主要由小车机构、小车结构和小车附件等组成。小车机构包括起升机构和运行机构;小车结构包括小车架、小车横梁;小车附件包括扫轨板、小车架两端连接板、过道支撑梁、缓冲器支座、花纹板、小车栏杆及电气元器件支架等构成。

  欧式小车将起升机构和运行机构的零部件立体布置在“H”形或“日”字形结构的小车架上,所有结构受力都通过小车架两边的主、副端梁来传递力,受力零部件直接作用在小车的主、副端梁上,结构布置简单,受力均衡,能使被动轮压*大化接近主动轮压,结构和机构能充分得到利用,材料能得到*优轻量化,设计简单、制造工艺简易,小车架整体机加工,组装精度高、结构变形小、小车重量较轻,间接地减小大车主梁的结构重量。
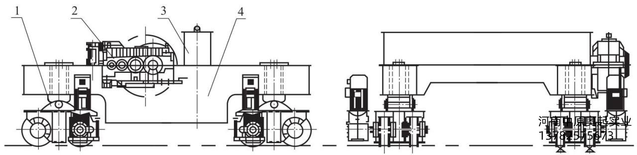
图3-3大欧式蜜桃视频APP下载机小车

图3-3大欧式蜜桃视频APP下载机小车

  1—小车运行机构;2—小车起升机构;3—小车横梁;4—小车架

  小欧式小车没有起升机构的专用支撑平台,每一个元器件都采用**知名品牌。“三合一”起升电机精致、体积小、重量轻,为整体集成部件,使电机可以直接和减速器连接,省去了连接轴和电机支座。但这种起升电机功率目前局限于45kW,只适合在5~50t范围上使用。国产元器件体积大、重量重,还不能做成集成部件,比较适合设计中、大欧式小车。

  中、大欧式小车需要有起升机构的专用支撑平台;制动器不宜采用制动轮型的制动器,这种制动器的横向尺寸较大,一般都不好布置起升机构,设计中、大欧式小车推荐采用盘式制动器。如果全部采用国外品牌元器件,中、大欧式小车的结构尺寸和自重更小更轻。

  在“低净空”系列中,全部采用国内品牌零部件和元器件的中、大欧式蜜桃视频APP下载机,性能也非常良好。尽管这种改良式的欧式小车相对小欧式小车重量较重,但非常适合50t以上的中、大欧式蜜桃视频APP下载机设计,这主要是因为国内主要元器件和外购件电机、减速器、制动器等的体积和重量是国外品牌的2~3倍,但价格却只有**品牌的1/5~1/2,设计成本上具有明显的优势。“低净空”蜜桃视频APP下载机小车,不但性能**,外表美观,还有节能、工作噪声低、安装运输和维护方便等优点。

  大欧式小车采用双梁4轨结构,小车每侧有双排车轮,车轮之间的组合为车轮群结构,小车相对较短,高度较小,小车起升机构部分和低净空型式一样。

  欧式小车推荐采用变频控制,不宜采用常规电气控制,主要是节能及减小起升和运行的冲击。起升电机推荐采用变频电机,可以考虑选用国产知名品牌电机产品。目前,国产变频电机除了体积大、重量重的欠缺不能和欧洲品牌相比外,性能可以满足欧式小车的一般工况,性价比较好。

  无论设计哪种欧式小车,对机构、部件都推荐优先采用SKF、FAG轴承。尤其对小欧式小车的机构和部件宜采用SKF、FAG轴承,主要因为小欧式小车的部件结构都比较小,轴承直径受到结构限制,SKF、FAG轴承质量可靠,采用SKF、FAG轴承可减少部件的质量事故发生。但SKF、FAG轴承价格非常昂贵,对中、大欧式小车的卷筒、吊钩、滑轮、车轮等部件的轴承也可以考虑采用国产知名品牌轴承。

  传统的绝缘蜜桃视频APP下载机、防爆蜜桃视频APP下载机、挂梁蜜桃视频APP下载机、冶金蜜桃视频APP下载机都可以按欧式小车结构型式设计。一般绝缘和防爆蜜桃视频APP下载机吨位不大,可以采用小欧式小车结构设计;挂梁和冶金蜜桃视频APP下载机可以采用中欧式小车结构型式设计。

  欧式小车之所以能按小欧、中欧、大欧的三种布置方式来考虑小车的设计,主要是从卷筒支承方式的变化、电机与减速器联接方式的匹配和减轻小车自重三个方面来考虑产品设计,从而带来小车架结构型式的变化。国外电机都是和减速器直接连接,国内电机对中、大欧式小车还需独立地支承在小车架内的低平面上,这完全是国内电机性能不佳造成的原因,虽然不能做为一种设计原则,但针对国内目前的现状是一种较实用的解决方案。

文章聚合页面: 欧式蜜桃视频APP下载机

联系蜜桃APP污

CONTACT US

联系人:徐经理

手机:13782575673

电话:0373-8611375

邮箱:hnzyaqqz@126.com

官网:www.766cs.com

地址:河南长垣蜜桃视频APP下载工业园区华豫大道中段

网站地图